TS4000E 105211 dørlukkerhus

TS4000E 105211 dørlukkerhus

654,38 EUR

(ekskl. moms)

Varenr.: 161.105.211
stk.

Kategori: Tilbehør

Varer
Pris
Note
Antal

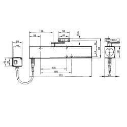
- Udenpåliggende dørlukker for 1-fløjede døre
- Med elektrohydraulisk låsning
- For indvendige og udvendige anslagsdøre
- Kan anvendes til både højre og venstre døre uden omstilling
- Kan anvendes til branddøre (DS/EN 1154 - DS/EN 1155)
- Alle funktioner justerbar fra front
- Optisk visning af fjederkraftindstilling 

Teknisk informationer: 
- Overflade: Sølv
- Styrke: 1 - 6
- Dørbredde op til: 1.400 mm 
- Justerbar sluttryk: 10 - 0°
- Justerbar lukkehastighed: 180 - 0°
- Driftspænding 24V DC +/- 15% (ca. 42 mA/ ca. 1 watt)
- Antal: 1 stk.

TS 4000EFS - ABDL
- Ved køb af fritløbsarm til denne dørlukker er der elektrohydraulisk fasthold for tilslutning af ABDL anlæg og friløbsfunktion der fungere uden modstand i åbne- og lukkeretning, men lukker automatisk i tilfælde af brand uafhængig af dørens position

 

Titel Type Størrelse Download
Doerlukker_TS_4000_E_datablad.pdf PDF 479.09KB Download
GEZE_TS_4000_E.pdf PDF 271.83KB Download
Doerlukker-TS-4000-EFS-Datablad.pdf PDF 486.59KB Download
GEZE_TS_4000_EFS.pdf PDF 270.66KB Download